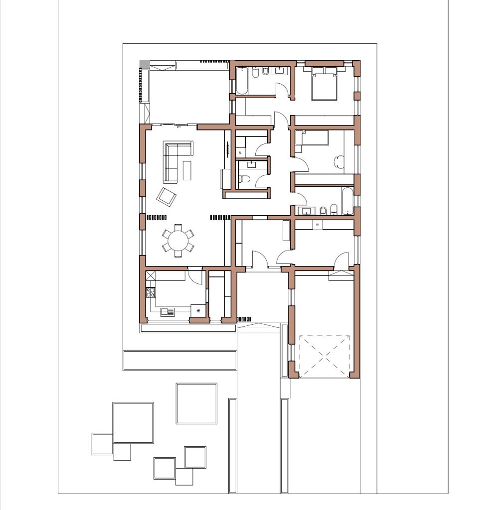
Descoperă selecția noastră de case, gata de implementat. Casele sunt concepute pentru echilibru între estetică funcționalitate si costuri optime. Fiecare casa poate fi adaptată terenului și nevoilor beneficiarului.